設計・製造・改造・メンテナンス

エイチアイシステムは未来につながる設備を提供いたします。

HIS(エイチアイシステム)では、2020年三菱重工機械システム(株)殿の委託により、三菱大規模地下駐車場(数百台規模)IPS(Integrated Parking System)の搬送据付台車の機能・作業性・操作性・安全性等を進化させた新型搬送据付台車を開発・設計・製作納入しました。
HISでは、この発案をベースにした重量物倉庫等向の搬入・搬送・搬出用荷役装置を開発し、2021年特許を取得しております。

重量物の物流自動化
20%
マテハン(マテリアルハンドリング)省人化
40%
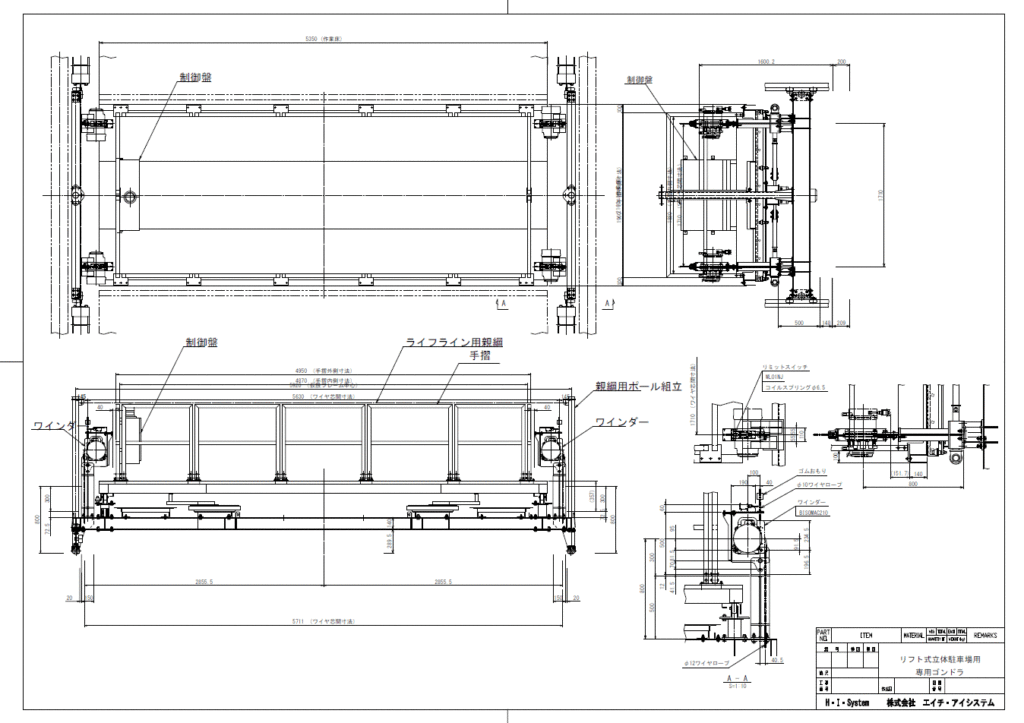
ゴンドラ設計・ゴンドラ製造
60%
特殊車両設計・特殊車両製造
80%
バイオマス発電設計・バイオマス発電自動化
100%

HISystemのできること

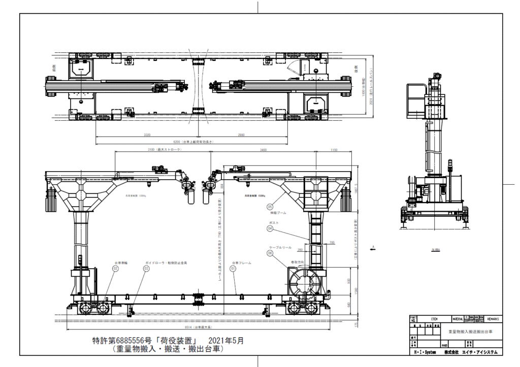
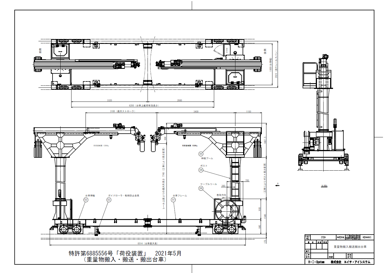
重量物 搬入 搬送 搬出 台車
本台車は地下大規模構造物(格納棚)の組立機械として開発したものでありますが、一方に於いて重量物倉庫やリース品の格納倉庫の入庫出庫用荷役装置、或いは他の建設現場に於ける資材搬入にもご利用頂けるものと判断し、広く販売を開始したものであります。
続きを読む
ゴンドラ製造許可・ゴンドラ設計
作業員の方々の高所への移動の効率化および安全な作業床の確保が必要となってくる場合がありますが、一般のリースによるゴンドラでは形状やゴンドラ搬器仕様がニーズに対応できない場合または、専用ゴンドラを設備として保有し使用した方が合理的な場合に、お客様ニーズを反映し設計したゴンドラの採用をご検討いただきたくお願い申し上げます。
続きを読む
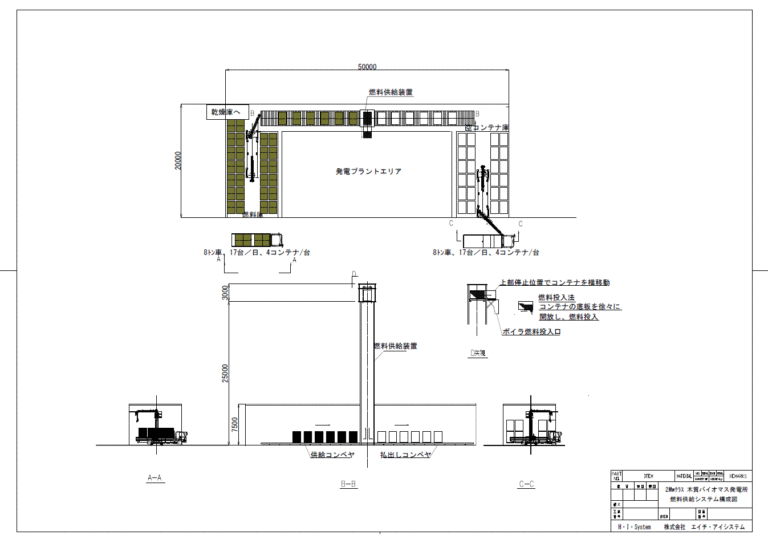
バイオマス燃料搬送装置
脱炭素社会への変換が要求される時代にあって、再生エネルギーと同様に急速に普及しているのが木質バイオマス発電であります。
続きを読む
特殊車両 設計・製造
水噴霧測定車の設計(強度計算と詳細設計)(1個の集水器への噴出量:250L/min、個々のスプリンクラー噴出量を自動測定)
続きを読む
バス立体駐車場改修工事
日本中央バス向バス体駐車場改修工事 (東京都板橋区)
続きを読む
電気自動車(EV)充電装置付立体駐車場
HISでは、2009年三菱重工パーキング(株)殿と電気自動車(EV)充電装置付立体駐車場の共同開発を行い、その実証プラントの設計・製作を受託納入しております。 現在、HISでは既設立体駐車場に新たに充電装置を設ける開発もお行っています。
続きを読む
重量物 搬入 搬送 搬出 台車
重量物 搬入 搬送 搬出 台車
本台車のご紹介
本台車は、荷役装置として 特許第6885556号(令和3年5月17日)の特許取得しました。
Detail
電気自動車充電装置付立体駐車場
電気自動車充電装置付立体駐車場
実証・PRプラント
現在、HISでは既設立体駐車場に新たに充電装置を設ける開発もお行っています。
Detail
バス立体駐車場改修工事
バス立体駐車場改修工事
日本中央バス向バス体駐車場改修工事
改修前状況(設置後約25年) 改修後
Detail
ゴンドラ設計・製造許可
ゴンドラ設計・製造許可
専用ゴンドラ製造実績
設計・株式会社 エイチ・アイシステム、製造・轍精工株式会社の連名で栃木労働局の認可を取得しております。
Detail
特殊車両 設計・製造
特殊車両 設計・製造
水噴霧測定車の設計(強度計算と詳細設計)
(1個の集水器への噴出量:250L/min、個々のスプリンクラー噴出量を自動測定)
Detail
バイオマス燃料搬送装置
バイオマス燃料搬送装置
木質バイオマス燃料搬送装置の開発概要
脱炭素社会への変換が要求される時代にあって、急速に普及しているのが木質バイオマス発電であります。
Detail
重量物搬入・搬送・搬出台車
重量物搬入・搬送・搬出台車適用図
リフト式立体駐車場用専用 ゴンドラ
バイオマス燃料供給装置 開発概要図
2Mワットクラス木質バイオマス発電所 燃料供給システム構成図
三段式バス立体格納設備

設計理念

ご相談・お問合せ