重量物 搬入 搬送 搬出 台車

HISでは、2020年三菱重工機械システム㈱殿の委託により、三菱大規模地下駐車場(数百台規模)
IPS(Integrated Parking System)の搬送据付台車の機能・作業性・操作性・安全性等を進化させた新型搬送据付台車を開発・設計・製作納入しました。
HISでは、この発案をベースにした重量物倉庫等向の搬入・搬送・搬出用荷役装置を開発し、2021年特許を取得しております。

本台車のご紹介

本台車は地下大規模構造物(格納棚)の組立機械として開発したものでありますが、一方に於いて重量物倉庫やリース品の格納倉庫の入庫出庫用荷役装置、或いは他の建設現場に於ける資材搬入にもご利用頂けるものと判断し、広く販売を開始したものであります。

下図に本台車の格納倉庫に適用イメージを示しております。
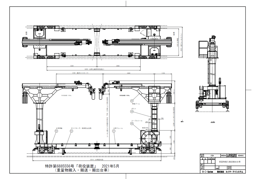
本台車は、荷役装置として 特許第6885556号(令和3年5月17日)の特許取得しました。
物流や工事現場に於ける人員不足が喫緊の課題となっている今日、弊社開発の重量物荷役装置が御社事業のお役に立てるようでしたら是非ご用命下さいますようお願いします。

本台車の特長について

  1. 本台車の特長は中央にトラックに相当する荷台を中央に備え、その両側に旋回・伸縮クレーンを備える事により、格納庫や倉庫の両端隅々迄、荷物の搬入・搬出を可能としたものであります。
    また、工事現場でもトラックから資材を受け取り、作業場迄の迅速な搬入・搬出にご利用戴けます。
  2. このような構造から、この台車を倉庫等に適用した場合、到着したトラックから全ての荷物を一旦台車荷台に受け取る事により、トラックの荷卸しに要する時間を大幅に短縮する事が出来ます。
    また、搬出に際しても、予め台車荷台に搬出する荷物を積載して置き、トラックへの積込み作業を短縮します。
    このように倉庫への搬出入や工事現場での資材搬入時間を短縮する事でトラックの待機時間を短くする等大幅な作業効率を図ったものであります。
重量物搬入・搬送・搬出台車写真1
重量物搬入・搬送・搬出台車

適用イメージ

(1)重量物倉庫への適用

重量物搬入・搬送・搬出台車適用図

(2)鉄道軌道周辺の保守作業への適用
HISでは、本台車を鉄道レール上を走行するように設計変更し、レール敷設用のコンクリート製枕木の搬送や軌道周辺のフェンス・信号設備等の取替え工事・メンテナンスにご利用戴く等適用範囲を拡大する事も考えております。

仕様について

  1. 製作の台車は、中央荷台が約4tの積載が可能で、伸縮ブームは、現状で最大6.5m。吊り荷重は、伸縮長0~4.1m迄1.5t、4.1m~5.5mで0.8t、5.5m~6.5mを0.3tとしていますが、これ等はお客様ニーズに応じ、積載重量の増加や作動速度を速める等設計変更を行います。
  2. 台車の操作は、オペレータ1人によるペンダント操作で、走行は単独、旋回・伸縮・昇降は連動操作としていますが、これについてもお客様ご要望に応じ変更致します。
  3. 台車前後には、台車走行中に人が接近したり、接触した場合は、緊急停止するよう監視カメラやテープスイッチ等の安全装置を備えています。